Q947H 電動固定式硬密封球閥
Q947F電動固定式球閥是以電源電壓作動力,接受(4-20mA、0-10mA或1-5VDC)電流信號或電壓信號,即可控制運轉,以角行程輸出的扭矩轉動球體0~90°,就能完成啟閉動作或調節動作。
全電子式電動執行機構,采用機電一體化結構,具有機內伺服操作和開度信號位置反饋、位置指示、手動操作等功能,連線簡單,通過輸入電流信號或電壓信號,改變球芯的旋轉角度(0-90°任意角度),實現比例調節動作。
1、電動固定式球閥球閥采用固定球設計,相對運動部位均采用磨擦系數小自潤滑材料,因而操作扭矩小,密封潤滑脂的長期密封,使得操作靈活。
2、電動固定式球閥采用高平臺結構,ISO5211連接標準,電/氣動執行器。
3、電動固定式球閥采用全通徑設計,流通阻力小。
4、金屬硬密封固定式球閥采用雙向金屬可動密封結構,具有自動補償及自潔功能,密封性能優。
5、電動固定式球閥采用固定球設計,并增加了預緊力彈簧。
6、每個球閥都有兩個可動密封座,兩個方向能密封,因而安裝時不須考慮介質的流向。
7、具有防火防靜電結構,在閥桿與閥體及閥桿與球體之間設置導電彈簧,避免靜電打火點燃易燃介質。
8、耐火結構雙重保護,球閥的密封部位能形成金屬對金屬的硬密封結構。

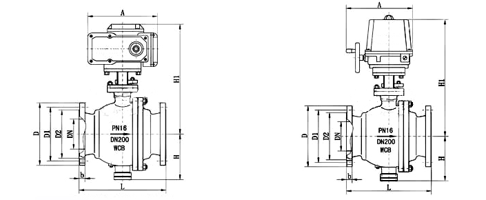
公稱通徑 DN(mm) | 50 | 65 | 80 | 100 | 125 | 150 | 200 | 250 | 300 | 350 | 400 | 500 | 600 | 700 | |
L | 130 | 140 | 150 | 165 | 180 | 200 | 220 | 250 | 280 | 320 | 360 | 400 | 630 | 750 | |
H | - | - | - | - | - | - | 335 | 385 | 430 | 470 | 590 | 700 | 780 | 950 | |
H1 | 配DSR | 根據所配執行機構而定,配置執行器不同,連接尺寸也不同 | |||||||||||||
配PSQ | |||||||||||||||
A | |||||||||||||||
D | 165 | 185 | 200 | 220 | 250 | 285 | 340 | 405 | 460 | 520 | 580 | 705 | 840 | 910 | |
D1 | 125 | 145 | 160 | 180 | 210 | 240 | 295 | 355 | 410 | 470 | 525 | 650 | 770 | 840 | |
D2 | 99 | 118 | 132 | 156 | 184 | 211 | 266 | 319 | 370 | 435 | 485 | 608 | 718 | 788 | |
n-φd | 4-18 | 4-18 | 8-18 | 8-18 | 8-18 | 8-22 | 12-22 | 12-26 | 12-26 | 12-26 | 12-30 | 12-34 | 12-41 | 12-41 | |
主要技術參數:
·閥體
閥體形 | 兩段式鑄造閥體 |
公稱通徑 | DN50~1000mm |
公稱壓力 | PN1.6、2.5、4.0、6.4、10.0 MPa;ANSI 150 300 600 900 LB;JIS 10 20 30 40 K |
連接形式 | 法蘭式 |
法蘭標準 | JIS、ANSI、GB、JB、HG等 |
閥蓋形式 | 一體式 |
壓蓋型式 | 螺栓壓緊式 |
密封填料 | V型聚四氟乙烯填料、含浸聚四氟乙烯石棉填料、石棉紡織填料、石墨填料 |
·閥內件
閥芯形式 | O型固定球型閥芯 |
流量特性 | 近似快開型 |
執行機構:
執行器型號 | DSR、3810R、DZW、HQ、PSQ電動執行機構 |
主要技術參數 | 電源電壓:220V/50Hz、380V/50Hz、輸入信號:4-20mA或1-5V·DC、輸出信號:4-20mA·DC |
防護等級:相當IP65(或IP67)、隔爆標志:ExdⅡBT4、手操功能:手柄 | |
環境溫度:-25~+70℃、環境濕度:≤95% |
※注:如需詳細執行器參數,請進入電動執行器頁面進行查閱。
主要零件材料:
1 | 底座 | WCB、CF8、CF8M、CF3M |
2 | 左閥體 | WCB、CF8、CF8M、CF3M |
3 | 下閥軸 | 2Cr13、304、316、316L |
4 | 右閥體 | WCB、CF8、CF8M、CF3M |
5 | 球體 | 2Cr13、304、316、316L |
6 | 密封圈 | PTFE、PPL、304、316、316L |
7 | 彈簧 | 65Mn、不銹鋼 |
8 | 銷 | 25、35、45 |
9 | 上閥軸 | 2Cr13、304、316、316L |
10 | 支架 | WCB、CF8、CF8M、CF3M |
11 | 填料壓板 | WCB、CF8、CF8M、CF3M |
12 | 執行器 | 根據執行器廠家提供配置 |
性能指標:
公稱通徑 DN(mm) | 50 | 65 | 80 | 100 | 125 | 150 | 200 | 250 | 300 | 350 | 400 | 450 | 500 | 600 | 700 | 800 | 900 | 1000 |
允許壓差(MPa) | ≤公稱壓力 | |||||||||||||||||
動作范圍 | 0~90°、0~360° | |||||||||||||||||
泄露量Q | 按GB/T4213-92,小于額定KV0.01% | |||||||||||||||||
基本誤差 | ±1% | |||||||||||||||||
回差 | ±1% | |||||||||||||||||
死區 | ≤1% | |||||||||||||||||
性能參數:
試驗壓力(Mpa) | 公稱壓力(Mpa) | 壓力級(class) | JIS(Mpa) | |||||||
1.6 | 2.5 | 4.0 | 6.4 | 10.0 | 150 | 300 | 600 | 10K | 20K | |
強度試驗 | 2.4 | 3.8 | 6.0 | 9.6 | 15.0 | 3.1 | 7.8 | 15.3 | 2.4 | 3.8 |
密封試驗 | 1.8 | 2.8 | 4.4 | 7.0 | 11.0 | 2.2 | 5.6 | 11.2 | 1.5 | 2.8 |
氣密試驗 | 0.5~0.7 | |||||||||